Part Number Hot Search : 
02N60I 57704M SMB110 RT7297C MT3508 AO6403L 471BA TN3022
Product Description
Full Text Search

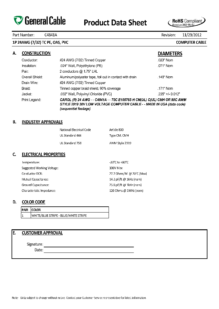
C4841A - 1P 24AWG (7/32) TC PE, OAS, PVC COMPUTER CABLE

C4841A_7293058.PDF Datasheet


 Full text search : 1P 24AWG (7/32) TC PE, OAS, PVC COMPUTER CABLE
 Product Description search : 1P 24AWG (7/32) TC PE, OAS, PVC COMPUTER CABLE


 Related Part Number
PART Description Maker
C4844A 4P 24AWG (7/32) TC PE, OAS, PVC COMPUTER CABLE
General Cable Technologies Corporation
C4841A 1P 24AWG (7/32) TC PE, OAS, PVC COMPUTER CABLE
General Cable Technologies Corporation
14-44-1204 14-44-1217 14-44-1205 14-44-1206 14-44- SL IDT Opt D Male 24AWG 15 SAu 4Ckt 4 CONTACT(S), MALE, STRAIGHT TWO PART BOARD CONNECTOR, CRIMP
SL IDT Opt D Male 24AWG 15 SAu 17Ckt 17 CONTACT(S), MALE, STRAIGHT TWO PART BOARD CONNECTOR, CRIMP
SL IDT Opt D Male 24AWG 15 SAu 5Ckt 5 CONTACT(S), MALE, STRAIGHT TWO PART BOARD CONNECTOR, CRIMP
SL IDT Opt D Male 24AWG 15 SAu 6Ckt 6 CONTACT(S), MALE, STRAIGHT TWO PART BOARD CONNECTOR, CRIMP
SL IDT Opt D Male 24AWG 15 SAu 2Ckt 2 CONTACT(S), MALE, STRAIGHT TWO PART BOARD CONNECTOR, CRIMP
14441225 25 CONTACT(S), MALE, STRAIGHT TWO PART BOARD CONNECTOR, CRIMP
SL IDT Opt D Male 24AWG 15 SAu 15Ckt
Molex, Inc.
MOLEX INC
00-9176001-701-006 00-9176001-701-106 00-9176001-7 18-24AWG IDC WIRE TO BOARD CONNECTOR
AVX Corporation
C3321 3C 20 7/28 TC OAS FLEX PVDF TYPE CL2P
General Cable Technolog...
C118011 1C 9.5 SOLID BCCS PE FILAMENT AIRCORE OAS PVC
General Cable Technolog...
C3362 2P 18 7/26 BC FLEX OAS PVDF TYPE CL2P / CMP
General Cable Technologies Corporation
E2504S 4C 18 SOLID BC SR-PVC OAS PVC Fire Alarm/Life Safety Cable
General Cable Technologies Corporation
E2100S 2C 22 SOLID BC FLEX OAS FLEX Sound, Alarm & Security Cable
General Cable Technologies Corporation
 
 Related keyword From Full Text Search System
C4841A DIFFERENTIAL CLOCK C4841A ocr C4841A Byte C4841A Pin C4841A Vbe(on)
C4841A marking code C4841A international C4841A intersil C4841A Register C4841A hot
 

 

Price & Availability of C4841A

All Rights Reserved © IC-ON-LINE 2003 - 2022  

[Add Bookmark] [Contact Us] [Link exchange] [Privacy policy]
Mirror Sites :  [www.datasheet.hk]   [www.maxim4u.com]  [www.ic-on-line.cn] [www.ic-on-line.com] [www.ic-on-line.net] [www.alldatasheet.com.cn] [www.gdcy.com]  [www.gdcy.net]


 . . . . .
  We use cookies to deliver the best possible web experience and assist with our advertising efforts. By continuing to use this site, you consent to the use of cookies. For more information on cookies, please take a look at our Privacy Policy. X
0.045146942138672