Part Number Hot Search : 
KBPC40P WP513HDT SG3845Y DT74AL MC74F148 CT875FUF 133BG SMBJ200A
Product Description
Full Text Search

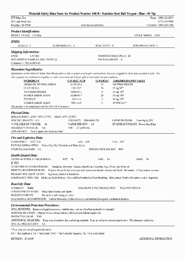
20003 - MARKER PAINT BOTTLE BLUE 标记蓝漆

20003_6423446.PDF Datasheet

 
Part No. 20003
Description MARKER PAINT BOTTLE BLUE 标记蓝漆

File Size 46.30K  /  1 Page  

Maker

N/A



JITONG TECHNOLOGY
(CHINA HK & SZ)
Datasheet.hk's Sponsor

Part: 2000037
Maker: N/A
Pack: N/A
Stock: 44
Unit price for :
    50: $2.33
  100: $2.21
1000: $2.09

Email: oulindz@gmail.com

Contact us

Homepage
Download [ ]
[ 20003 Datasheet PDF Downlaod from Datasheet.HK ]
[20003 Datasheet PDF Downlaod from Maxim4U.com ] :-)


[ View it Online ]   [ Search more for 20003 ]

[ Price & Availability of 20003 by FindChips.com ]

 Full text search : MARKER PAINT BOTTLE BLUE 标记蓝漆
 Product Description search : MARKER PAINT BOTTLE BLUE 标记蓝漆


 Related Part Number
PART Description Maker
GT14-1.3PT GT14W-2S-HU GT14-1.1PT GT14-20_3.8-4.8P Coaxial cable connection of Antennas, Sensors, and Communication Trunk Lines 在天线,传感器和通信中继同轴电缆连接
SNAP LOCK CABLE MARKER - H 在天线,传感器和通信中继同轴电缆连接
Paired Cable; Number of Conductors:50; Conductor Size AWG:24; No. Strands x Strand Size:Solid; Jacket Material:Polyvinylchloride (PVC); Number of Pairs:25; Features:Unshielded; Impedance:100ohm; Leaded Process Compatible:Yes RoHS Compliant: Yes
SNAP LOCK CABLE MARKER - H
SNAP LOCK CABLE MARKER - G
SNAP LOCK CABLE MARKER - I
Coaxial cable connection of Antennas/ Sensors/ and Communication Trunk Lines
HIROSE ELECTRIC Co., Ltd.
Hirose Electric USA, INC.
HIROSE[Hirose Electric]
EC000761 27149103 Zack marker strip
PHOENIX CONTACT
OSBBY25111E 5mm Round Blue & Blue LED UV Resistant Epoxy/ Water Clear Type
OptoSupply International
BL-HB335 BL-HB135 Blue, 30 mA, blue chip LED lamp
Yellow Stone Corp
BL-HB334C BL-HB134C Blue, 30 mA, blue chip LED lamp
Yellow Stone Corp
SSI-LXH55USBD-150 5mm x 5mm 470mm INGAN SIC BLUE LED PANEL INDICATOR BLUE DIFFUSED LENS, 6 WIRE LEADS
LUMEX INC.
PBYR1040CTD PBYR1045CTD SNAP LOCK CABLE MARKER - 7 (100PK) 5 A, 45 V, SILICON, RECTIFIER DIODE
Rectifier diodes Schottky barrier
NXP Semiconductors N.V.
PHILIPS[Philips Semiconductors]
CMD264UBC CMD264UBD CMD383UBC CMD383UBC_H2 CMD383U T-1 and T-1 3/4 Blue LED Lamps
T-1 SINGLE COLOR LED, BLUE, 3 mm
Chicago Miniature Lamp,inc
CML INNOVATIVE TECHNOLOGIES
OSBBY23131E 3mm Round Blue & Blue LED 3mm Round Standard Directivity Long Lifetime Operation
OptoSupply International
HSMB-C152 HSMB-C172 HSMB-C192 HSMB-C112 HSMB-C196 HSMB-C152 · Surface Mount Blue chipLED
HSMB-C172 · Surface Mount Blue chipLED
HSMB-C192 · Surface Mount Blue chipLED
HSMB-C112 · Surface Mount Blue ChipLED
HSMB-C196 · Surface Mount Blue chipLED
Agilent (Hewlett-Packard)
NV4V31MF R08DS0045EJ0001 Blue-Violet Laser Diode 405 nm Blue-Violet Laser Light Source
http://
Renesas Electronics Corporation
 
 Related keyword From Full Text Search System
20003 appreciate 20003 IC DATA SHET 20003 complimentary against 20003 datasheet 20003 chip
20003 Series 20003 standard 20003 interface 20003 register 20003 Microcontroller
 

 

Price & Availability of 20003

All Rights Reserved © IC-ON-LINE 2003 - 2022  

[Add Bookmark] [Contact Us] [Link exchange] [Privacy policy]
Mirror Sites :  [www.datasheet.hk]   [www.maxim4u.com]  [www.ic-on-line.cn] [www.ic-on-line.com] [www.ic-on-line.net] [www.alldatasheet.com.cn] [www.gdcy.com]  [www.gdcy.net]


 . . . . .
  We use cookies to deliver the best possible web experience and assist with our advertising efforts. By continuing to use this site, you consent to the use of cookies. For more information on cookies, please take a look at our Privacy Policy. X
0.31190299987793