Part Number Hot Search : 
25002 ZM24B ST305 C229M UGS3132U A01BBSD1 HE83750 26730
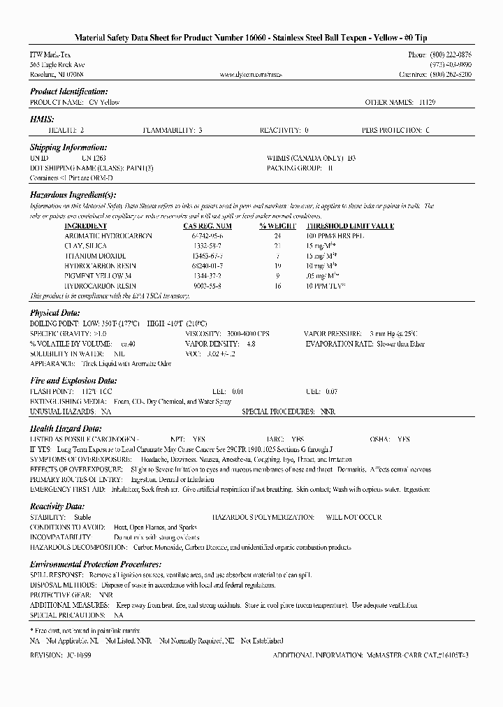
Product Description
Full Text Search

20001 - MARKER PAINT BOTTLE YELLOW

20001_1043838.PDF Datasheet

 
Part No. 20001
Description MARKER PAINT BOTTLE YELLOW

File Size 46.97K  /  1 Page  

Maker

N/A



JITONG TECHNOLOGY
(CHINA HK & SZ)
Datasheet.hk's Sponsor

Part: 20001
Maker: ERICSSON
Pack: 高频管
Stock: 21
Unit price for :
    50: $22.15
  100: $21.05
1000: $19.94

Email: oulindz@gmail.com

Contact us

Homepage
Download [ ]
[ 20001 Datasheet PDF Downlaod from Datasheet.HK ]
[20001 Datasheet PDF Downlaod from Maxim4U.com ] :-)


[ View it Online ]   [ Search more for 20001 ]

[ Price & Availability of 20001 by FindChips.com ]

 Full text search : MARKER PAINT BOTTLE YELLOW
 Product Description search : MARKER PAINT BOTTLE YELLOW


 Related Part Number
PART Description Maker
E011300 Miniature Paint Insulated Metal Oxide Film Fixed Resistors
HOKURIKU ELECTRIC INDUSTRY CO.,LTD
7835 Deep Marker Transponder
Sonardyne sound in depth
PCA07-A-J PCA07-6 PCA07-Z PCA07-0-9 PCA07-K-T PCA0 CUSTOMER DRAWING PCA07 CLIP-ON WIRE MARKER
PANDUIT CORP.
PCA13-0 PCA13-9 PCA13-K-T PCA13-A-J PCA13-0-9 PCA1 CUSTOMER DRAWING PCA13 CLIP-ON WIRE MARKER
   CUSTOMER DRAWING PCA13 CLIP-ON WIRE MARKER
PANDUIT CORP.
SSL-LX433YD T-5mm (T-1 3/4) 585nm YELLOW LED, YELLOW DIFFUSED FREZNEL LENS
List of Unclassifed Manufacturers
ETC[ETC]
NTE30109 LED − Dual Color 5mm Yellow/Yellow Green
NTE Electronics
OSYGH4S2C1A 3.5x2.8x1.9mm Yellow& Yellow Green SMD LED
OptoSupply International
SSL-LX5063YD T-5mm (T-1 3/4) 585nm YELLOW LED, YELLOW DIFFUSED FREZNEL LENS
List of Unclassifed Manufacturers
ETC[ETC]
OSYYJ23131A 3mm Round Yellow &Yellow LED High Luminous LEDs Long Lifetime Operation
OptoSupply International
BL-HG0Y033B-TRB Yellow Green and Yellow Suitable for all SMT assembly methods.
Bright LED Electronics Corp.
OSYGHC3131A 3mm Round Yellow & Yellow Green LED
OptoSupply International
 
 Related keyword From Full Text Search System
20001 Timer 20001 interrupt 20001 frequency 20001 filetype:pdf 20001 corporation
20001 Fixed 20001 single 20001 pressure sensor 20001 Bandwidth 20001 barrier
 

 

Price & Availability of 20001

All Rights Reserved © IC-ON-LINE 2003 - 2022  

[Add Bookmark] [Contact Us] [Link exchange] [Privacy policy]
Mirror Sites :  [www.datasheet.hk]   [www.maxim4u.com]  [www.ic-on-line.cn] [www.ic-on-line.com] [www.ic-on-line.net] [www.alldatasheet.com.cn] [www.gdcy.com]  [www.gdcy.net]


 . . . . .
  We use cookies to deliver the best possible web experience and assist with our advertising efforts. By continuing to use this site, you consent to the use of cookies. For more information on cookies, please take a look at our Privacy Policy. X
0.026733875274658